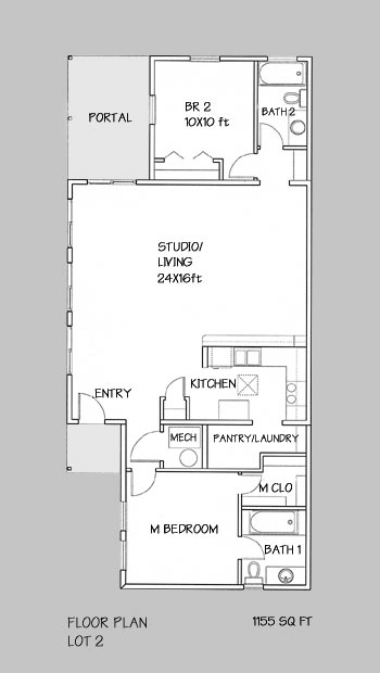
Santa Rita Studios, Lot 2
1155 sq ft

Home | Santa Rita Studios | Custom Home Design | Kitchens | Details

Contact Collins Design
Web Design: Fine Art Graphics